




礦山企業輸送皮帶灰塵捕集布袋除塵器設計安裝,礦山企業的輸送皮帶、破碎機、振動篩等設備運行過程中都會有很多粉塵,通過對產塵點安裝皮帶罩和防塵罩,可以有效控制粉塵的擴散,并用布袋除塵器將灰塵收集起來。礦山企業生產車間的粉塵收集,選礦、制砂設備的
服務電話:13091153069(同微信)
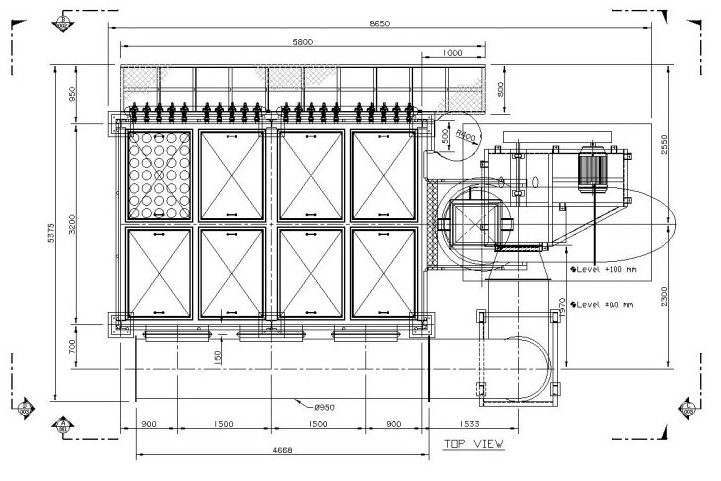
| 處理風量 | 33000m3/h | 布袋數量 | 280條 | 螺旋輸送機和卸灰閥 | 1套 |
| 過濾面積 | 58m2 | 布袋規格 | ф150*4000mm | 電機功率 | 2.2KW和0.75KW |
| 室 | 1 | 脈沖閥數量 | 20個 | 風機 | 1臺 |
| 風壓 | 2500Pa | 脈沖閥規格 | 1.5寸 | 風機功率 | 75KW |


鐵礦干選車間皮帶輸送機、破碎機、振動篩除塵系統管道安裝完畢,粉塵控制和收集效果很好。
